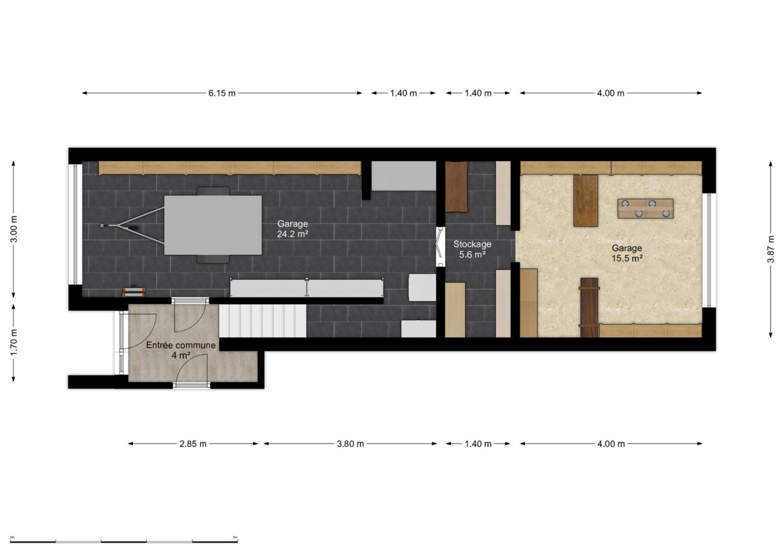
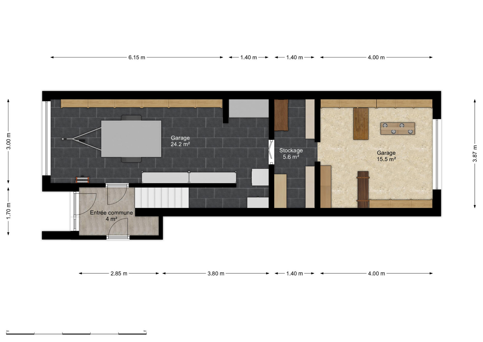
!!! VISITES REALISABLES UNIQUEMENT SUR RDV AU 0492 88 90 39 !!! PLUS D’INFOS SUR WWW.DECA-IMMOBILIER.BE – Cette maison bel étage dispose au rez-de-chaussée d’un hall d’entrée commun, d’un double garage avec accès par la façade avant ou arrière. Le premier étage se compose d’un lumineux séjour avec balcon, d’un WC séparé et d’une cuisine donnant sur une terrasse couverte. Le second étage comprend un hall de nuit desservant deux chambres et une salle de bains. Les combles offrent un espace supplémentaire de +/- 25 m², aménageable selon vos besoins – Actuellement loué, le bien sera libre au 30/09/25 – PEB : G – n°20170724000964 – 526 Kwh/m².an – 48.437 Kwh/an – FAIRE OFFRE A PARTIR DE 269.000 Euros, sous réserve d’acceptation des vendeurs – RC : 795 Euros – VISITES REALISABLES UNIQUEMENT SUR RDV AU 0492 88 90 39



















































