Composée comme suit :
– Rez : hall d’entrée, séjour, cuisine, buanderie, petit hall avec placard et wc séparé.
– Etage : 1 chambre et salle de bains.
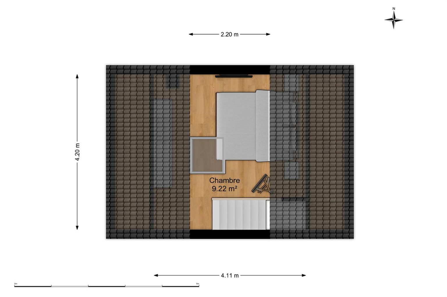
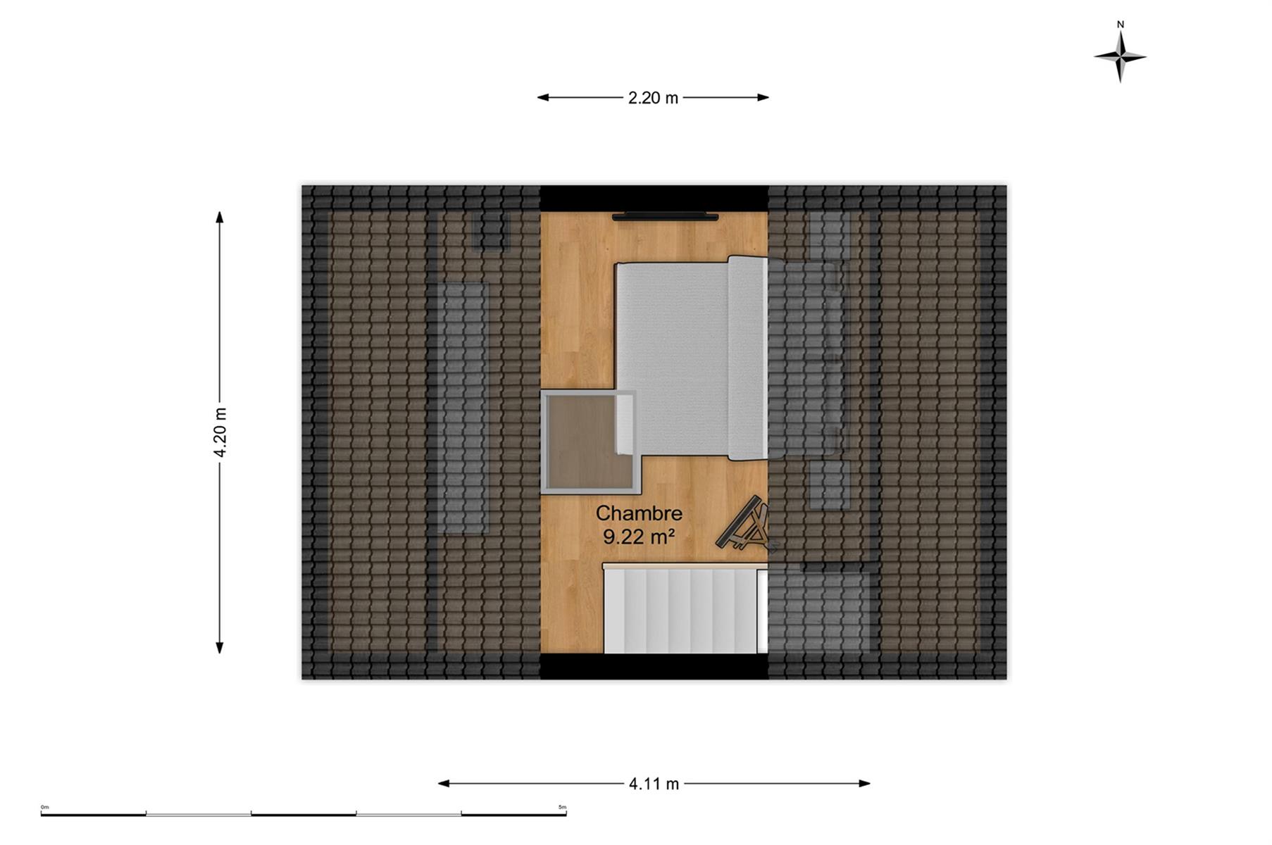
– Sous-combles : 1 chambre.
– Extérieur : jouissance d’un jardin avec terrasse.
– Sous-sol : caves.
Situation et proximités : quartier résidentiel, non loin des commodités: transports en commun, commerces, écoles, grands axes,…
PEB : G – n°2015101900018033181 – 623 Kwh/m².an – 64.453Kwh/an
FAIRE OFFRE A PARTIR DE 219.000 Euros sous réserve d’acceptation des vendeurs – RC : 240 Euros
VISITES REALISABLES UNIQUEMENT SUR RDV AU 0497/350.360







































