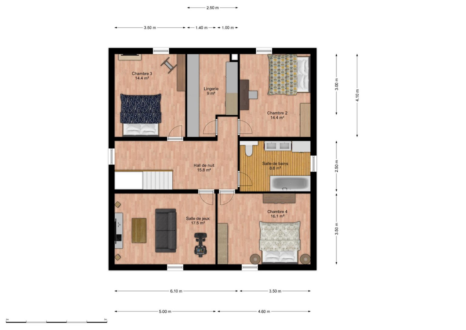
Découvrez cette spacieuse villa aux volumes généreux et érigée sur une parcelle de 9 ares 45 centiares. Elle est située à proximité des commodités et bénéficie d’une localisation privilégiée à l’entrée d’un clos. Le rez se compose d’un vaste hall d’entrée permettant d’accueillir une clientèle, avec un accès direct à un bureau, idéal pour l’exercice d’une profession libérale. Vous profiterez ensuite d’un lumineux et paisible séjour avec cuisine ouverte, une buanderie pratique, dotée d’un accès extérieur et attenante au garage, ainsi qu’une salle de douche qui complète cet espace de vie convivial. À l’étage, profitez de 4 chambres spacieuses, un dressing fonctionnel ainsi qu’une salle de bains confortable. Les combles permettent un espace de rangement supplémentaire. À l’extérieur, l’avant de la maison dispose d’un portail motorisé donnant accès au garage et aux parkings. Une allée carrossable mène à une terrasse et à un jardin clôturé et entretenu avec abri. L’orientation sud-ouest assure un ensoleillement optimal pour profiter pleinement. La maison est équipée de climatisations réversibles ainsi que de panneaux solaires permettant de réduire consommation énergétique – PEB : C – n° 20190823000973 – 193 Kwh/m².an – 46.587 Kwh/an – FAIRE OFFRE A PARTIR DE 419.000 Euros sous réserve d’acceptation des vendeurs – RC : 1.620 Euros – VISITES REALISABLES SUR RDV AU 0492 88 90 39























































